Property
Beds
None
Full Baths
None
1/2 Baths
None
Year Built
2005
Sq.Footage
20,950
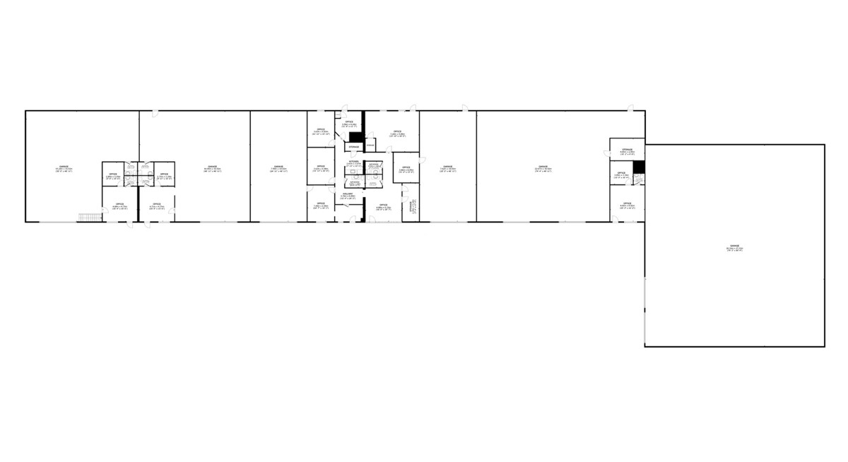
Total building SF: 20,950 SF Total AC: ±4.66 AC Asking price: $2,681,600 Price per SF: $128 PSF Zoning: HC Peak height: 13' Grade level doors: 8 Units: 6 Yard space: ±0.56 ā ±0.75 AC New roof added in January of 2025. The roof will convey with a 15-year 'NDL' warranty from the manufacturer. The facility has one month-to-month tenant occupying ±2,500 SF. 3.2 mile drive to Interstate-49.
Features & Amenities
Interior
-
Total Bedrooms
N/A
-
Bathrooms
N/A
-
Basement YN
NO
-
Pet friendly
N/A
Exterior
-
Garage
No
-
Pool
No
Area & Lot
-
Lot Features
Other, See Remarks
-
Lot Size(acres)
4.66
-
Property Type
Commercial Sale
-
Property Sub Type
Warehouse
Price
-
Sales Price
$2,681,600
-
Tax Amount
5450.0
-
Zoning
Industrial
-
Sq. Footage
20, 950
-
Price/SqFt
$128
HOA
-
Association
No
School District
-
Elementary School
N/A
-
Middle School
N/A
-
High School
N/A
Schedule a Showing
Showing scheduled successfully.
Mortgage calculator
Estimate your monthly mortgage payment, including the principal and interest, property taxes, and HOA. Adjust the values to generate a more accurate rate.
Your payment
Principal and Interest:
$
Property taxes:
$
HOA fees:
$
Total loan payment:
$
Total interest amount:
$
Location
County
Benton
Elementary School
Middle School
High School
Listing Courtesy of Palmer Hays , Bennett Commercial Real Estate
RealHub Information is provided exclusively for consumers' personal, non-commercial use, and it may not be used for any purpose other than to identify prospective properties consumers may be interested in purchasing. All information deemed reliable but not guaranteed and should be independently verified. All properties are subject to prior sale, change or withdrawal. RealHub website owner shall not be responsible for any typographical errors, misinformation, misprints and shall be held totally harmless.

REALTORĀ®
SheryRagsdale
Call Shery today to schedule a private showing.

* Listings on this website come from the FMLS IDX Compilation and may be held by brokerage firms other than the owner of this website. The listing brokerage is identified in any listing details. Information is deemed reliable but is not guaranteed. If you believe any FMLS listing contains material that infringes your copyrighted work please click here to review our DMCA policy and learn how to submit a takedown request.Ā© 2024 FMLS.
