Property
Beds
None
Full Baths
None
1/2 Baths
None
Year Built
2025
Sq.Footage
16,000
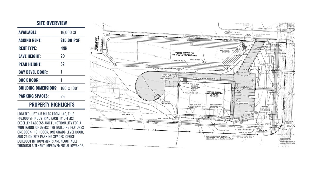
Eave height: 20' Peak height: 32' Bay level door: 1 Dock door: 1 Building dimensions: 160' x 100' Parking spaces: 25 4.5 mile drive from interstate 49. Office buildout improvements are negotiable as a TI Allowance.
Features & Amenities
Interior
-
Total Bedrooms
N/A
-
Bathrooms
N/A
-
Pet friendly
N/A
Exterior
-
Garage
No
-
Pool
No
Area & Lot
-
Lot Features
Other, See Remarks
-
Property Type
Commercial Lease
-
Property Sub Type
Warehouse
Price
-
Sales Price
$15
-
Sq. Footage
16, 000
-
Price/SqFt
N/A
HOA
-
Association
No
School District
-
Elementary School
N/A
-
Middle School
N/A
-
High School
N/A
Schedule a Showing
Showing scheduled successfully.
Mortgage calculator
Estimate your monthly mortgage payment, including the principal and interest, property taxes, and HOA. Adjust the values to generate a more accurate rate.
Your payment
Principal and Interest:
$
Property taxes:
$
HOA fees:
$
Total loan payment:
$
Total interest amount:
$
Location
County
Washington
Elementary School
Middle School
High School
Listing Courtesy of Palmer Hays , Focus Commercial Real Estate
RealHub Information is provided exclusively for consumers' personal, non-commercial use, and it may not be used for any purpose other than to identify prospective properties consumers may be interested in purchasing. All information deemed reliable but not guaranteed and should be independently verified. All properties are subject to prior sale, change or withdrawal. RealHub website owner shall not be responsible for any typographical errors, misinformation, misprints and shall be held totally harmless.

REALTORĀ®
SheryRagsdale
Call Shery today to schedule a private showing.

* Listings on this website come from the FMLS IDX Compilation and may be held by brokerage firms other than the owner of this website. The listing brokerage is identified in any listing details. Information is deemed reliable but is not guaranteed. If you believe any FMLS listing contains material that infringes your copyrighted work please click here to review our DMCA policy and learn how to submit a takedown request.Ā© 2024 FMLS.

Related Properties
