Property
Beds
None
Full Baths
None
1/2 Baths
None
Year Built
1975
Sq.Footage
13,720
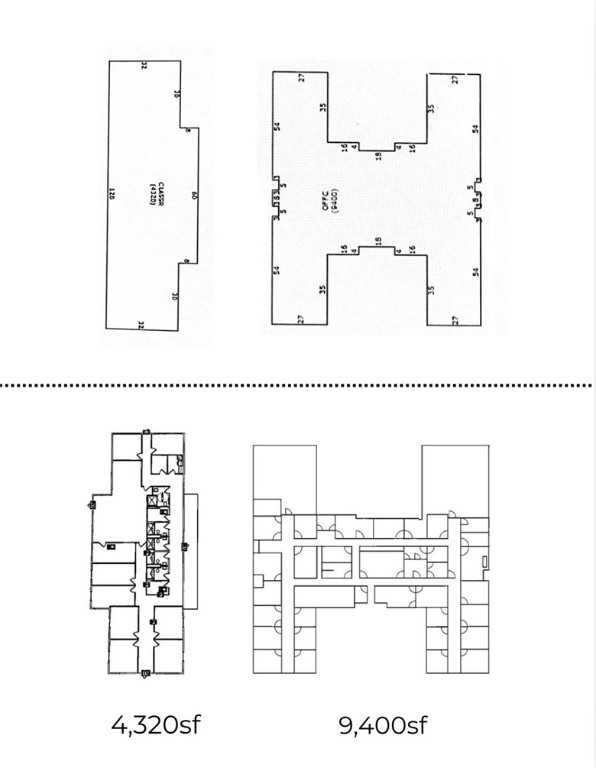
Prime investment property in East Fayetteville! Priced to sell! Total building sf 13,720 (9,400 and 4,320). Lot size 2.48 acres. 4153 Crossover: Sprinkled. Updates to HVAC, roof, gutters, floors, paint July 2025. 4171 Crossover: New TPO roof July 2025. HVAC units serviced July 2025. New lighting and ceiling tiles throughout July 2025. $70,000 allowance included to choose paint and flooring.
Features & Amenities
Interior
-
Total Bedrooms
N/A
-
Bathrooms
N/A
-
Basement YN
NO
-
Pet friendly
N/A
Exterior
-
Garage
No
-
Construction Materials
Brick
-
Parking
Parking Lot
-
Pool
No
Area & Lot
-
Lot Features
City Lot
-
Lot Size(acres)
2.49
-
Property Type
Commercial Sale
-
Property Sub Type
Office
Price
-
Sales Price
$2,908,640
-
Tax Amount
20848.0
-
Zoning
Commercial
-
Sq. Footage
13, 720
-
Price/SqFt
$212
HOA
-
Association
No
School District
-
Elementary School
N/A
-
Middle School
N/A
-
High School
N/A
Property Features
-
Association Amenities
Trail(s)
-
Sewer
Public Sewer
-
Tax Lot
n/a
-
Water Source
Public
Schedule a Showing
Showing scheduled successfully.
Mortgage calculator
Estimate your monthly mortgage payment, including the principal and interest, property taxes, and HOA. Adjust the values to generate a more accurate rate.
Your payment
Principal and Interest:
$
Property taxes:
$
HOA fees:
$
Total loan payment:
$
Total interest amount:
$
Location
County
Washington
Elementary School
Middle School
High School
Listing Courtesy of Josie White , Hillcrest Real Estate Group, LLC
RealHub Information is provided exclusively for consumers' personal, non-commercial use, and it may not be used for any purpose other than to identify prospective properties consumers may be interested in purchasing. All information deemed reliable but not guaranteed and should be independently verified. All properties are subject to prior sale, change or withdrawal. RealHub website owner shall not be responsible for any typographical errors, misinformation, misprints and shall be held totally harmless.

REALTORĀ®
SheryRagsdale
Call Shery today to schedule a private showing.

* Listings on this website come from the FMLS IDX Compilation and may be held by brokerage firms other than the owner of this website. The listing brokerage is identified in any listing details. Information is deemed reliable but is not guaranteed. If you believe any FMLS listing contains material that infringes your copyrighted work please click here to review our DMCA policy and learn how to submit a takedown request.Ā© 2024 FMLS.
