Traditional
6 Hallock Drive
Bella Vista , AR 72714
MLS#: 1322625
$497,000

Property
Beds
3
Full Baths
2
1/2 Baths
None
Year Built
2007
Sq.Footage
2,618
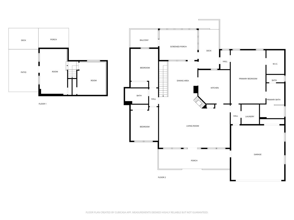
Welcome to this spacious 3-bedroom, 2-bath home in the desirable Buckingham subdivision, steps from Buckingham Trailhead. Offering 2,618 sq ft, this property blends comfort, style, and outdoor fun. The main level features an open living room with soaring ceilings, gas-log fireplace, formal dining area, and built-in details The kitchen has granite counters, pantry, and glass cooktop, . The split floor plan includes a XL primary suite with whirlpool tub, walk-in shower, and generous closet space. Two additional bedrooms and a full bath complete the main floor. The updated basement offers a bonus/media room space, perfect for entertainment or hobbies. Accessibility features include wide doorways, that are wheelchair access. Enjoy outdoor living with a screened porch, huge deck, & fenced backyard. Community amenities - trails, pools tennis, playground, and clubhouse. Zoned for Bentonville schools. Additional side lot dedicated to this home provides added privacy and space wi/out extra cost. New paint/new flooring.
Features & Amenities
Interior
-
Other Interior Features
Built-in Features, Ceiling Fan(s), Cathedral Ceiling(s), Granite Counters, Pantry, See Remarks, Solar Tube(s), Walk-In Closet(s)
-
Total Bedrooms
3
-
Bathrooms
2
-
Basement YN
YES
-
Cooling YN
YES
-
Cooling
Ceiling Fan(s), Heat Pump
-
Fireplace YN
YES
-
Heating YN
YES
-
Heating
Heat Pump
-
Pet friendly
N/A
Exterior
-
Garage
No
-
Construction Materials
Stone, Brick, Vinyl Siding
-
Other Exterior Features
Dock
-
Parking
Concrete, Attached, Garage, Garage Door Opener, Driveway
-
Patio and Porch Features
Deck, Patio, Porch, Screened
-
Pool
Yes
-
Pool Features
Community
Area & Lot
-
Lot Features
Cleared, Sloped
-
Lot Size(acres)
0.3
-
Property Type
Residential
-
Property Sub Type
Single Family Residence
-
Architectural Style
Traditional
Price
-
Sales Price
$497,000
-
Tax Amount
2803.0
-
Zoning
Residential
-
Sq. Footage
2, 618
-
Price/SqFt
$189
HOA
-
Association
YES
-
Association Fee
$45
-
Association Fee Frequency
Monthly
-
Association Fee Includes
N/A
School District
-
Elementary School
Bentonville
-
Middle School
N/A
-
High School
N/A
Property Features
-
Stories
2
-
Accessibility Features
Accessible Entrance, Accessible Doors
-
Association Amenities
Management, Trail(s)
-
Foundation Details
Block
-
Sewer
Septic Tank
-
Tax Lot
12
-
Water Source
Public
Schedule a Showing
Showing scheduled successfully.
Mortgage calculator
Estimate your monthly mortgage payment, including the principal and interest, property taxes, and HOA. Adjust the values to generate a more accurate rate.
Your payment
Principal and Interest:
$
Property taxes:
$
HOA fees:
$
Total loan payment:
$
Total interest amount:
$
Location
County
Benton
Elementary School
Bentonville
Middle School
High School
Listing Courtesy of Paula Prince , Better Homes and Gardens Real Estate Journey Bento
RealHub Information is provided exclusively for consumers' personal, non-commercial use, and it may not be used for any purpose other than to identify prospective properties consumers may be interested in purchasing. All information deemed reliable but not guaranteed and should be independently verified. All properties are subject to prior sale, change or withdrawal. RealHub website owner shall not be responsible for any typographical errors, misinformation, misprints and shall be held totally harmless.

REALTORĀ®
SheryRagsdale
Call Shery today to schedule a private showing.

* Listings on this website come from the FMLS IDX Compilation and may be held by brokerage firms other than the owner of this website. The listing brokerage is identified in any listing details. Information is deemed reliable but is not guaranteed. If you believe any FMLS listing contains material that infringes your copyrighted work please click here to review our DMCA policy and learn how to submit a takedown request.Ā© 2024 FMLS.
