Property
Beds
3
Full Baths
3
1/2 Baths
2
Year Built
1987
Sq.Footage
4,709
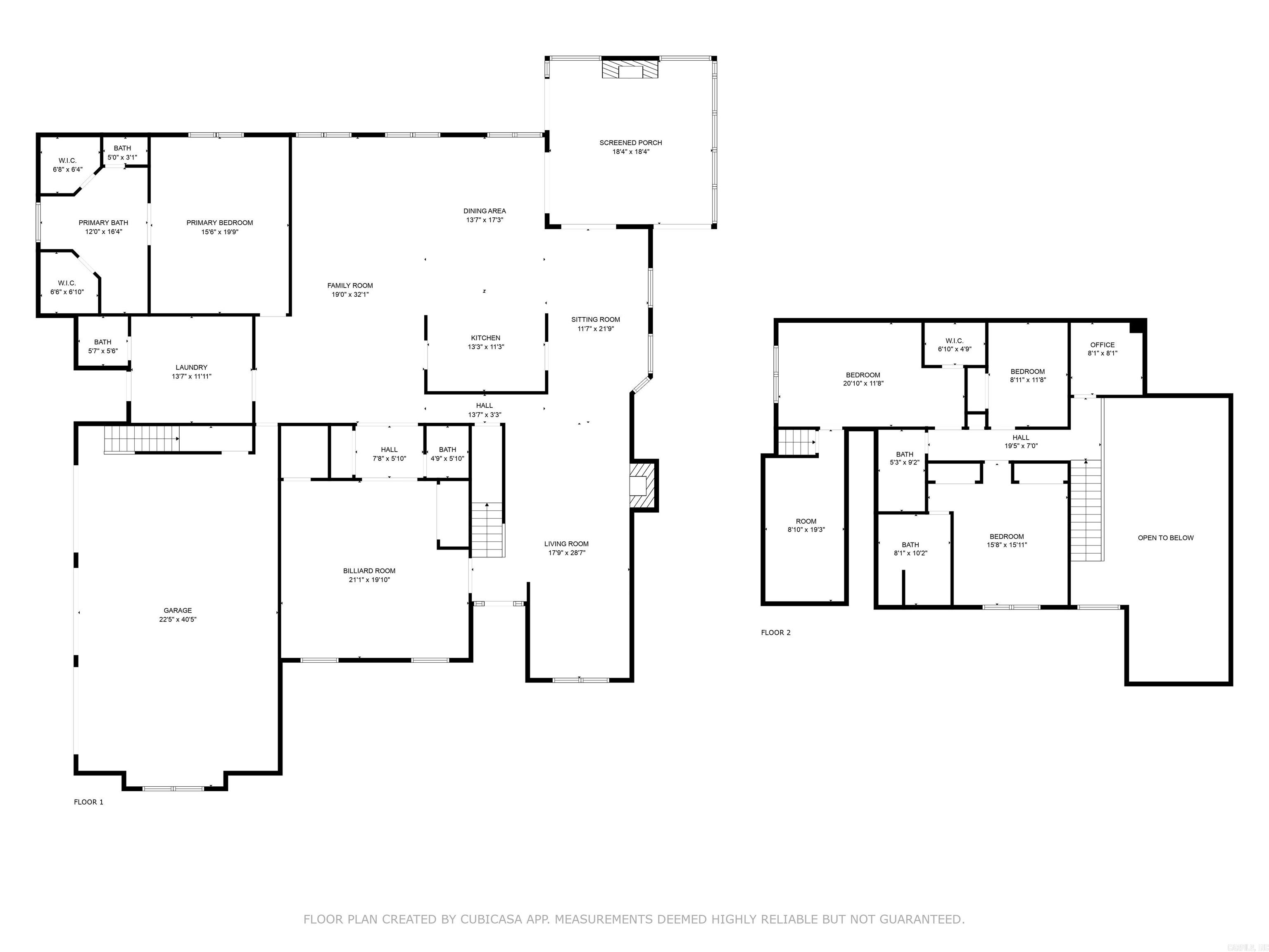
This incredible estate is the ultimate retreat, offering over 4,700 sq ft of thoughtfully designed space and endless entertainmentāall in a prime location just 10 minutes from both downtown Benton and Bryant. With three bedrooms (and potential for a fourth), three full baths, and two half baths, the layout includes an office, massive game room, and a stunning sunroom with its own fireplaceāall overlooking the backyard oasis. Originally taken down to the studs and completely remodeled in 2008, the home has seen numerous updates since. The remodeled kitchen features a large, curved breakfast bar opening to a spacious family room, while the grand entry boasts soaring ceilings and a cozy wood-burning fireplace. Outside, enjoy resort-style amenities, including a saltwater pool, pool house with kitchenette and half bath, basketball sports court, sand volleyball court, and a private enclosed hot tub or golf simulator area. A storage building with electricity. Every detail has been carefully considered to create a home that blends luxury, comfort, and entertainment. Come experience it for yourself!
Features & Amenities
Interior
-
Other Interior Features
Breakfast Bar, Pantry
-
Total Bedrooms
3
-
Bathrooms
3
-
1/2 Bathrooms
2
-
Cooling YN
YES
-
Cooling
Central Air
-
Heating YN
YES
-
Heating
Central, Natural Gas, Heat Pump
-
Pet friendly
N/A
Exterior
-
Garage
Yes
-
Garage spaces
3
-
Construction Materials
Brick
-
Other Exterior Features
Storage
-
Parking
Garage Door Opener
-
Patio and Porch Features
Patio, Porch
-
Pool
Yes
-
Pool Features
In Ground
Area & Lot
-
Lot Features
Cleared, Level
-
Lot Size(acres)
1.42
-
Property Type
Residential
-
Property Sub Type
Single Family Residence
-
Architectural Style
Traditional
Price
-
Sales Price
$729,900
-
Tax Amount
4653.94
-
Sq. Footage
4, 709
-
Price/SqFt
$155
HOA
-
Association
No
School District
-
Elementary School
N/A
-
Middle School
N/A
-
High School
N/A
Property Features
-
Stories
2
-
Sewer
Public Sewer
-
Water Source
Public
Schedule a Showing
Showing scheduled successfully.
Mortgage calculator
Estimate your monthly mortgage payment, including the principal and interest, property taxes, and HOA. Adjust the values to generate a more accurate rate.
Your payment
Principal and Interest:
$
Property taxes:
$
HOA fees:
$
Total loan payment:
$
Total interest amount:
$
Location
County
Saline
Elementary School
Middle School
High School
Listing Courtesy of Kaylee Hampton , IRealty Arkansas - Benton
RealHub Information is provided exclusively for consumers' personal, non-commercial use, and it may not be used for any purpose other than to identify prospective properties consumers may be interested in purchasing. All information deemed reliable but not guaranteed and should be independently verified. All properties are subject to prior sale, change or withdrawal. RealHub website owner shall not be responsible for any typographical errors, misinformation, misprints and shall be held totally harmless.

REALTORĀ®
SheryRagsdale
Call Shery today to schedule a private showing.

* Listings on this website come from the FMLS IDX Compilation and may be held by brokerage firms other than the owner of this website. The listing brokerage is identified in any listing details. Information is deemed reliable but is not guaranteed. If you believe any FMLS listing contains material that infringes your copyrighted work please click here to review our DMCA policy and learn how to submit a takedown request.Ā© 2024 FMLS.
