Property
Beds
2
Full Baths
2
1/2 Baths
None
Year Built
2025
Sq.Footage
1,200
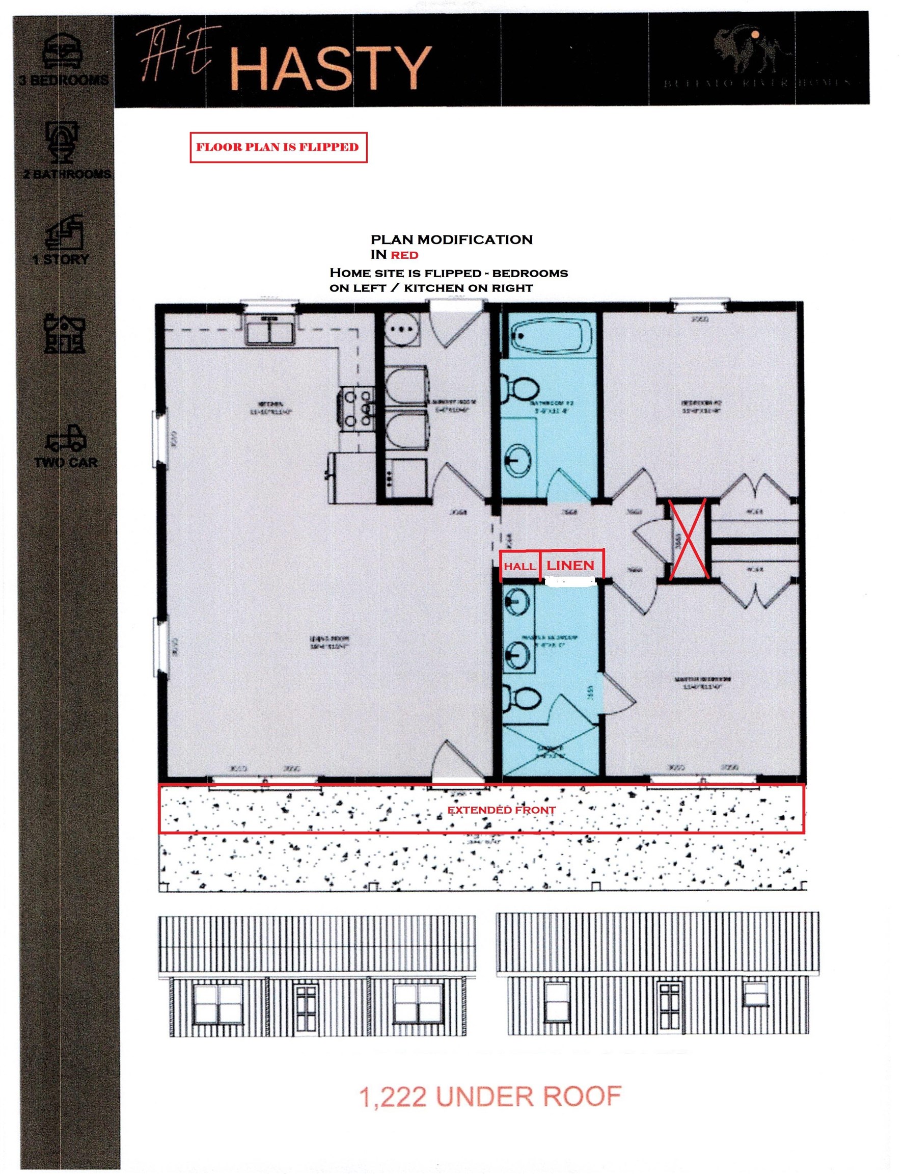
Absolutely Stunning ā Now Move-In Ready! Buyer could not perform, so this beautiful home is available againādonāt miss your chance this time! Set on an extra-wide lot, thereās room for your RV, garage, or future shopāplus plenty of private backyard space. This modified Hasty floor plan has a slightly larger footprint than the original, designed with a smart layout that lives bigger than its size. The builders took extra care with every detail, from specialty lighting to thoughtful finishes throughout. No squatty fixtures hereāevery choice reflects comfort, style, and lasting quality. Built with airtight, energy-efficient construction and non-toxic, mold-resistant materials, this home ensures year-round comfort, healthier indoor living, and long-term durability. With too many features to list, this is truly a must-see home. Schedule your showing today and experience the difference!
Features & Amenities
Interior
-
Other Interior Features
Eat-in Kitchen
-
Total Bedrooms
2
-
Bathrooms
2
-
Heating YN
YES
-
Heating
Electric, Central
-
Pet friendly
N/A
Exterior
-
Garage
No
-
Pool
No
Area & Lot
-
Lot Features
Level
-
Lot Size(acres)
0.43
-
Property Type
Residential
-
Property Sub Type
Single Family Residence
-
Architectural Style
Traditional
Price
-
Sales Price
$225,000
-
Sq. Footage
1, 200
-
Price/SqFt
$187
HOA
-
Association
No
School District
-
Elementary School
N/A
-
Middle School
N/A
-
High School
N/A
Property Features
-
Stories
1
-
Sewer
Public Sewer
-
Water Source
Public, Well, Private
Schedule a Showing
Showing scheduled successfully.
Mortgage calculator
Estimate your monthly mortgage payment, including the principal and interest, property taxes, and HOA. Adjust the values to generate a more accurate rate.
Your payment
Principal and Interest:
$
Property taxes:
$
HOA fees:
$
Total loan payment:
$
Total interest amount:
$
Location
County
Stone
Elementary School
Middle School
High School
Listing Courtesy of Michelle Hutchings-Middleton , Century 21 Middleton
RealHub Information is provided exclusively for consumers' personal, non-commercial use, and it may not be used for any purpose other than to identify prospective properties consumers may be interested in purchasing. All information deemed reliable but not guaranteed and should be independently verified. All properties are subject to prior sale, change or withdrawal. RealHub website owner shall not be responsible for any typographical errors, misinformation, misprints and shall be held totally harmless.

REALTORĀ®
SheryRagsdale
Call Shery today to schedule a private showing.

* Listings on this website come from the FMLS IDX Compilation and may be held by brokerage firms other than the owner of this website. The listing brokerage is identified in any listing details. Information is deemed reliable but is not guaranteed. If you believe any FMLS listing contains material that infringes your copyrighted work please click here to review our DMCA policy and learn how to submit a takedown request.Ā© 2024 FMLS.
