Property
Beds
4
Full Baths
3
1/2 Baths
None
Year Built
2000
Sq.Footage
3,577
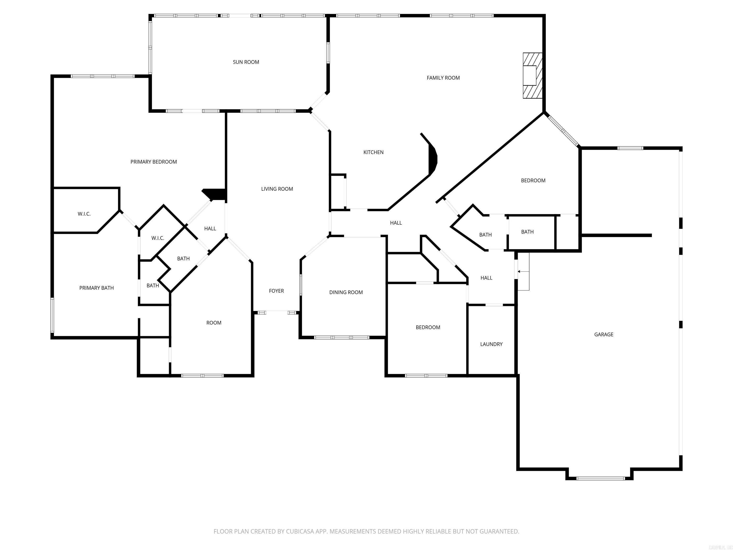
Have you dreamed about owning a home in Greystone? Now is your chance! Welcome to 37 Greystone Blvd! This custom built, one owner, builderās personal home, sits on the Fairway of the 18th hole! This beautiful home boast beauty and detail that is found in very few homes! The 10ā ceilings, intricate crown molding, double pan ceilings, and Marathon water heater are just the beginning. No expense was spared in the construction of this home! With windows along the entire back, you can enjoy the view of the Fairway! The master bathroom is a room fit for royalty! Larger than most living rooms, this bathroom has separate vanities, his/her closets, corner jetted tub and a large cabinet/island that has plenty of drawers for additional storage. The kitchen is a dream come true with an abundance of cabinets! Designed to flow into the breakfast area and den, the large bar allows for cozy conversations and entertainment. In addition, three more bedrooms, two baths, large laundry room and an incredible, heated and cooled, sunroom top off this home. Outside sits an amazing 22x18 Gazebo, with room to add a pool! A new roof was installed in 2024, and the A/C replaced only two years ago!
Features & Amenities
Interior
-
Total Bedrooms
4
-
Bathrooms
3
-
Cooling YN
YES
-
Cooling
Central Air
-
Heating YN
YES
-
Heating
Electric, Central
-
Pet friendly
N/A
Exterior
-
Garage
Yes
-
Garage spaces
4
-
Construction Materials
Brick
-
Pool
No
Area & Lot
-
Lot Features
Level
-
Property Type
Residential
-
Property Sub Type
Single Family Residence
-
Architectural Style
Traditional
Price
-
Sales Price
$539,000
-
Tax Amount
3375.19
-
Sq. Footage
3, 577
-
Price/SqFt
$150
HOA
-
Association
YES
-
Association Fee
$120
-
Association Fee Frequency
Annually
-
Association Fee Includes
N/A
School District
-
Elementary School
N/A
-
Middle School
N/A
-
High School
N/A
Property Features
-
Stories
1
-
Sewer
Public Sewer
-
Water Source
Public
Schedule a Showing
Showing scheduled successfully.
Mortgage calculator
Estimate your monthly mortgage payment, including the principal and interest, property taxes, and HOA. Adjust the values to generate a more accurate rate.
Your payment
Principal and Interest:
$
Property taxes:
$
HOA fees:
$
Total loan payment:
$
Total interest amount:
$
Location
County
Lonoke
Elementary School
Middle School
High School
Listing Courtesy of Kimberly Pearce , Crye-Leike REALTORS Cabot Branch
RealHub Information is provided exclusively for consumers' personal, non-commercial use, and it may not be used for any purpose other than to identify prospective properties consumers may be interested in purchasing. All information deemed reliable but not guaranteed and should be independently verified. All properties are subject to prior sale, change or withdrawal. RealHub website owner shall not be responsible for any typographical errors, misinformation, misprints and shall be held totally harmless.

REALTORĀ®
SheryRagsdale
Call Shery today to schedule a private showing.

* Listings on this website come from the FMLS IDX Compilation and may be held by brokerage firms other than the owner of this website. The listing brokerage is identified in any listing details. Information is deemed reliable but is not guaranteed. If you believe any FMLS listing contains material that infringes your copyrighted work please click here to review our DMCA policy and learn how to submit a takedown request.Ā© 2024 FMLS.
