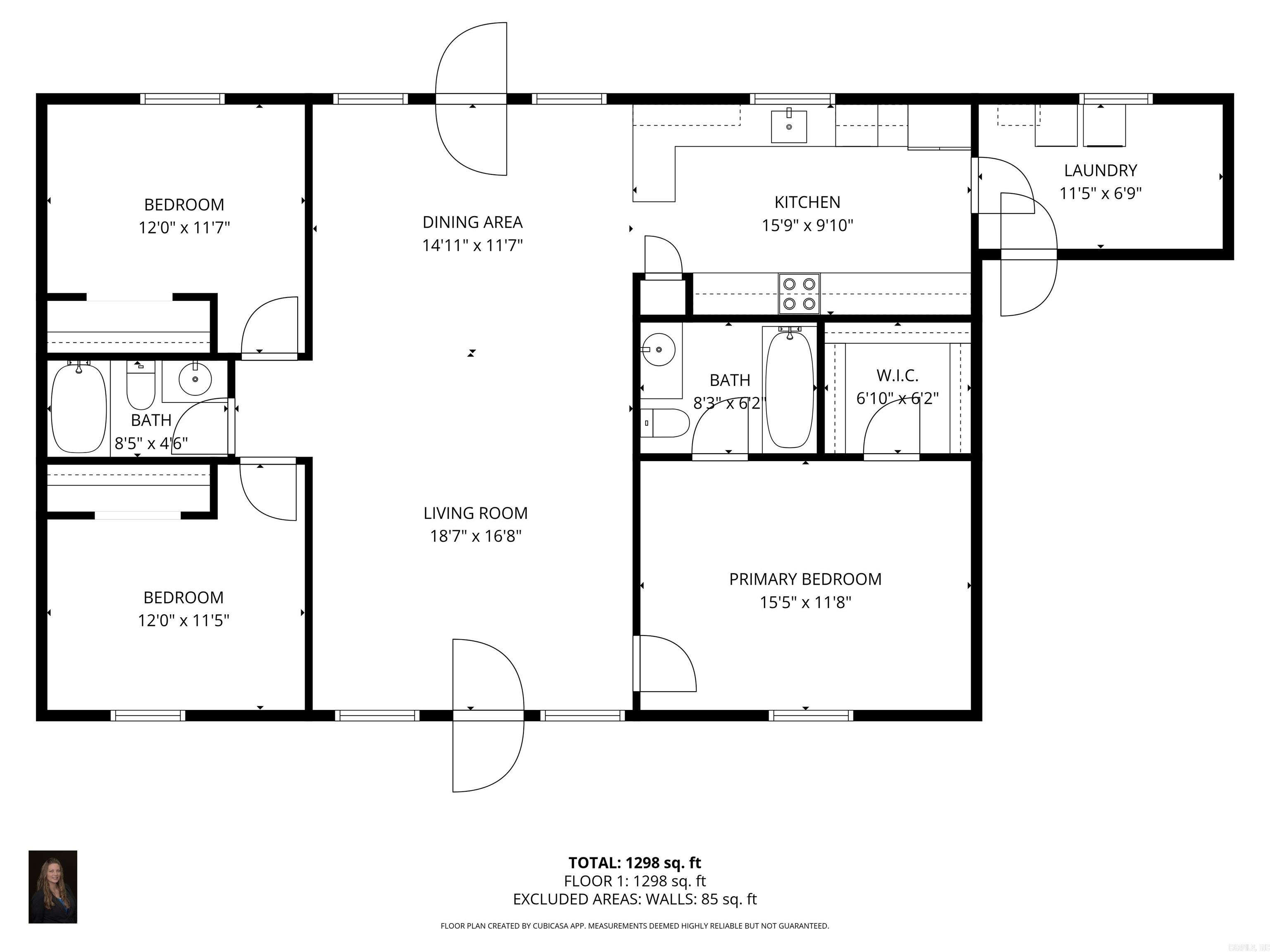
Property
Beds
3
Full Baths
2
1/2 Baths
None
Year Built
1995
Sq.Footage
1,503
This inviting 3-bedroom, 2-bath brick home offers comfort, updates & plenty of space to enjoy. Inside, youāll find ceramic tile flooring throughout, a bright & functional kitchen with a new sink, and updated features including new ceiling fans, a new water heater, a new blower & updated thermostat for the central heat and air. The home also boasts a new roof for peace of mind. Step outside to your own backyard retreat featuring an in-ground pool, perfect for relaxing or entertaining. A new privacy fence is currently being installed, adding even more appeal to the outdoor space. Conveniently located inside city limits, this property combines modern upgrades with everyday convenience.
Features & Amenities
Interior
-
Other Interior Features
Breakfast Bar, Walk-In Closet(s)
-
Total Bedrooms
3
-
Bathrooms
2
-
Cooling YN
YES
-
Cooling
Central Air, Ceiling Fan(s)
-
Heating YN
YES
-
Heating
Electric, Central
-
Pet friendly
N/A
Exterior
-
Garage
No
-
Construction Materials
Brick
-
Other Exterior Features
Storage
-
Patio and Porch Features
Patio, Porch
-
Pool
Yes
-
Pool Features
In Ground
Area & Lot
-
Lot Size(acres)
0.26
-
Property Type
Residential
-
Property Sub Type
Single Family Residence
-
Architectural Style
Ranch
Price
-
Sales Price
$229,000
-
Tax Amount
1035.0
-
Sq. Footage
1, 503
-
Price/SqFt
$152
HOA
-
Association
No
School District
-
Elementary School
Louise Durham
-
Middle School
Mena
-
High School
Mena
Property Features
-
Stories
1
-
Sewer
Public Sewer
-
Water Source
Public
Schedule a Showing
Showing scheduled successfully.
Mortgage calculator
Estimate your monthly mortgage payment, including the principal and interest, property taxes, and HOA. Adjust the values to generate a more accurate rate.
Your payment
Principal and Interest:
$
Property taxes:
$
HOA fees:
$
Total loan payment:
$
Total interest amount:
$
Location
County
Polk
Elementary School
Louise Durham
Middle School
Mena
High School
Mena
Listing Courtesy of Deana Dixon , Select Realty
RealHub Information is provided exclusively for consumers' personal, non-commercial use, and it may not be used for any purpose other than to identify prospective properties consumers may be interested in purchasing. All information deemed reliable but not guaranteed and should be independently verified. All properties are subject to prior sale, change or withdrawal. RealHub website owner shall not be responsible for any typographical errors, misinformation, misprints and shall be held totally harmless.

REALTORĀ®
SheryRagsdale
Call Shery today to schedule a private showing.

* Listings on this website come from the FMLS IDX Compilation and may be held by brokerage firms other than the owner of this website. The listing brokerage is identified in any listing details. Information is deemed reliable but is not guaranteed. If you believe any FMLS listing contains material that infringes your copyrighted work please click here to review our DMCA policy and learn how to submit a takedown request.Ā© 2024 FMLS.
